Estás utilizando un navegador obsoleto
Es posible que debido al navegador que estás usando, algunas páginas de esta web no se vean de manera óptima, por lo que te recomendamos que utilices Google Chrome, Mozilla Firefox o Internet Explorer 11. Muchas gracias.
Rehabilitación fachadas 10.10.2025
La realidad de las obras nos lo confirma una y otra vez: los problemas en sistemas SATE raramente aparecen en los paños continuos de fachada. Surgen en los puntos singulares, donde el sistema debe adaptarse a encuentros con carpinterías, arranques de zócalo, remates de cubierta o uniones de diferentes materiales.
La experiencia nos ha enseñado que muchas patologías que se manifiestan años después tienen su origen en la ausencia de un detalle constructivo o en su incorrecta interpretación durante la ejecución. Una junta de dilatación sin el perfil o una incorrecta instalación del mismo genera fisuras. Un arranque sin la impermeabilización necesaria presenta humedades. Un encuentro con carpintería sin los perfiles auxiliares necesarios genera fisuras. Y lo más problemático: estos fallos no son evidentes de inmediato, aparecen cuando el sistema lleva un tiempo instalado y las soluciones son mucho más costosas.
Cada detalle responde a una lógica de sistema. Los sistemas SATE no se componen de elementos aislados, sino que son soluciones integradas donde cada componente cumple una función específica que no debe obviarse ni modificarse sin criterio técnico.
En un sector donde la presión de plazos y costes es constante, dedicar tiempo a definir y ejecutar correctamente los detalles constructivos no es un lujo técnico. Es la única manera de garantizar que el sistema SATE cumplirá su función durante toda su vida útil, sin intervenciones correctivas prematuras.
Para el técnico que proyecta, incorporar detalles constructivos claros en la documentación evita improvisaciones en obra y reduce dudas y consultas durante la ejecución. En muchas ocasiones es insuficiente prescribir un sistema certificado si no se define con precisión cómo resolver cada punto singular. Para el aplicador, un detalle bien documentado elimina incertidumbres: muestra la secuencia de capas, los perfiles necesarios y el orden de ejecución. En caso de obras grandes y con diferentes equipos, asegura que todos ejecutan las soluciones de la misma manera, manteniendo un estándar de calidad homogéneo.
A modo de ejemplo hemos seleccionado dos de los detalles constructivos que puedes ver y descargar en el área privada de Beissier.
Encuentro con cajón de persiana
Este detalle muestra la correcta ejecución del encuentro del sistema Beissier Therm E con el cajón de persiana cuando este queda integrado en el plano de fachada. El aislamiento no puede fijarse directamente sobre el cajón, por lo que se recurre a una solución técnica específica: se instala una placa de cemento ligera (elemento 3) mediante anclajes atornillados (elemento 4).
El aislamiento se adhiere posteriormente a esta placa con el mortero BME 12007, garantizando la continuidad térmica del conjunto. Es importante respetar las distancias indicadas en la colocación, tanto de la placa aislante como de las fijaciones mecánicas de la misma al soporte.

Detalle de junta de dilatación estructural en el plano de fachada y en esquina interior.
Este detalle resuelve la necesidad de absorber los movimientos estructurales del edificio mediante un perfil de PVC específico para juntas de dilatación, que permite mantener la continuidad visual y funcional del sistema SATE mientras garantiza la independencia de movimientos entre ambos lados de la junta, evitando así la transmisión de tensiones que provocarían fisuras y grietas en el revestimiento.

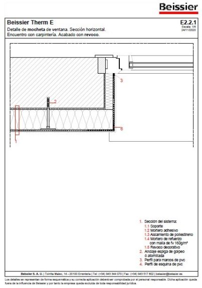
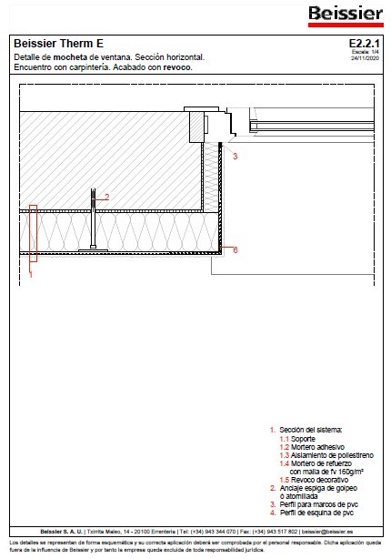
Mocheta de encuentro con carpintería
En este ejemplo, no se trata simplemente de colocar aislamiento alrededor del hueco. Estamos resolviendo un punto en el que confluyen distintos materiales, donde las tensiones mecánicas se concentran, donde el riesgo de infiltración es mayor y donde una incorrecta ejecución puede derivar en diversas patologías en el interior.
El perfil de esquina en el borde del aislamiento no es un elemento decorativo: refuerza una zona vulnerable a impactos y facilita la correcta aplicación del mortero de refuerzo. El perfil para marcos garantiza un remate limpio y duradero en un punto especialmente expuesto.
